SPONGE FACTORY
FEASIBILITY STUDY
SERVICES: Architectural Design
LOCATION: Philadelphia, PA
STATUS: Conceptual Design
YEAR: 2021
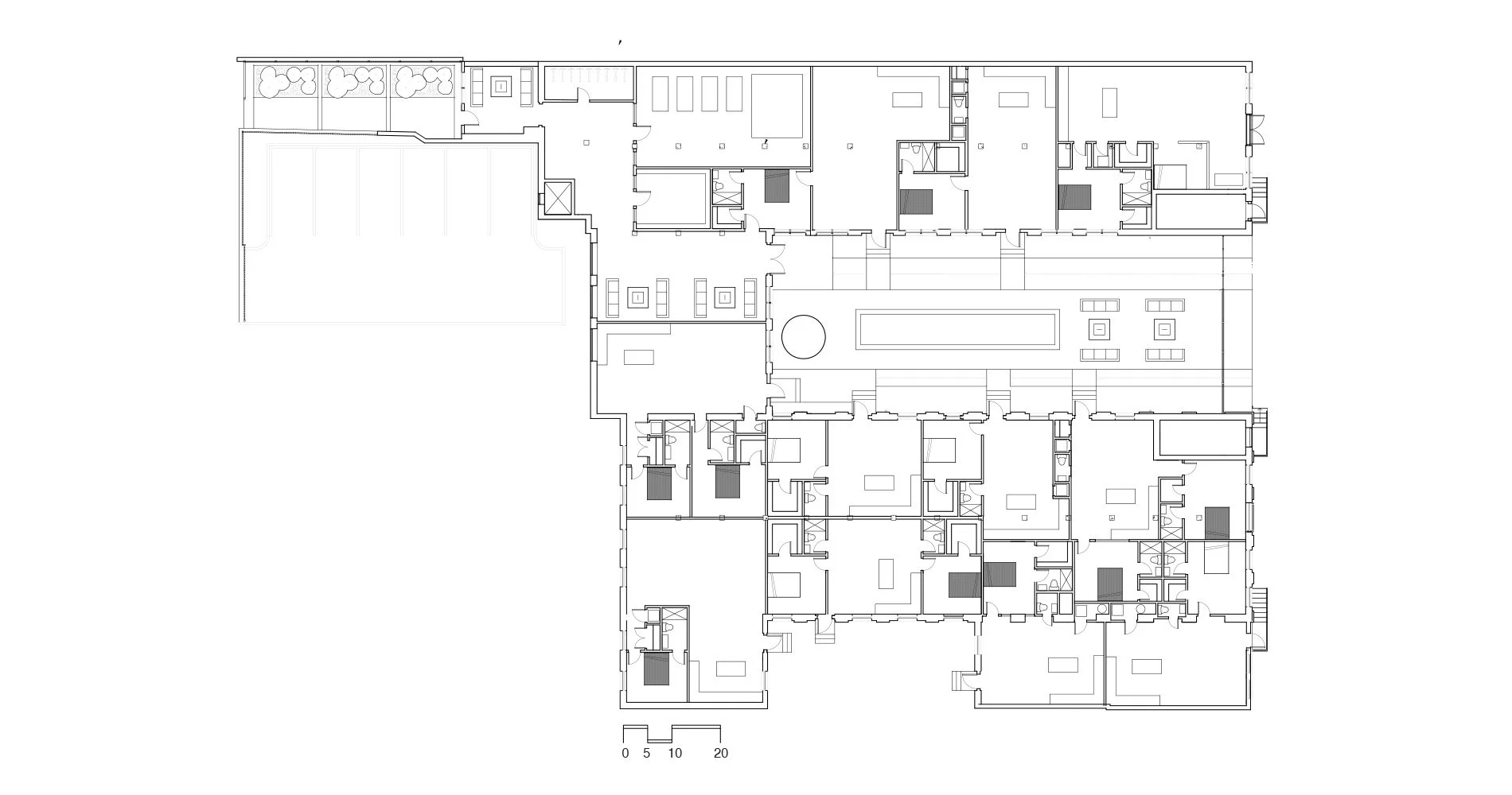
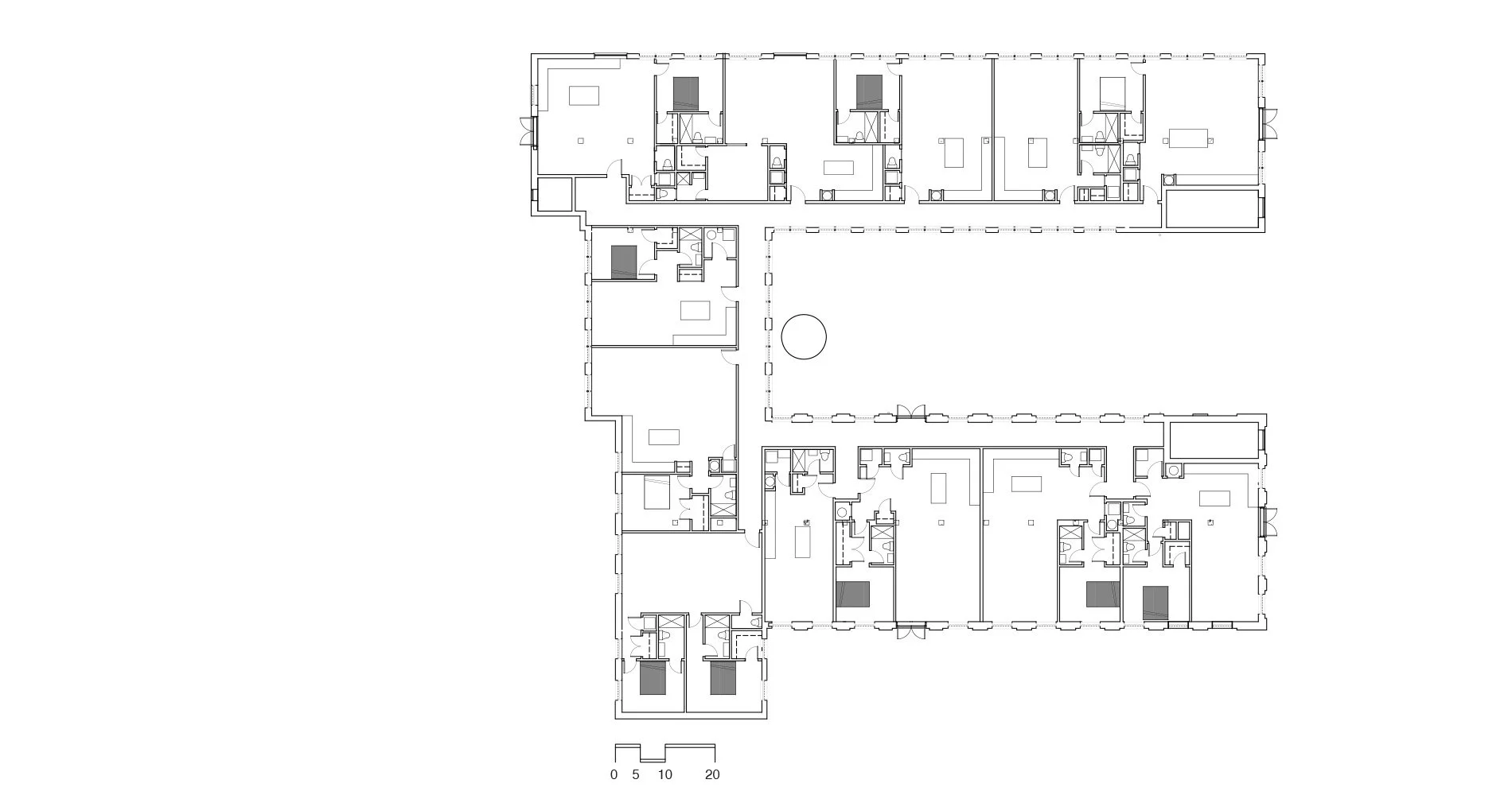
Woodcock Design, Inc. provided a feasibility and code study for the adaptive reuse of several factory buildings for multi-family residential use, in the Northern Liberties section of Philadelphia.
