REVERE ROAD
SERVICES: Architectural Design
CLIENT: Private Homeowner
LOCATION: Merion Station, PA
STATUS: In Design, Construction to begin Spring 2026
YEARS: 2025-Present
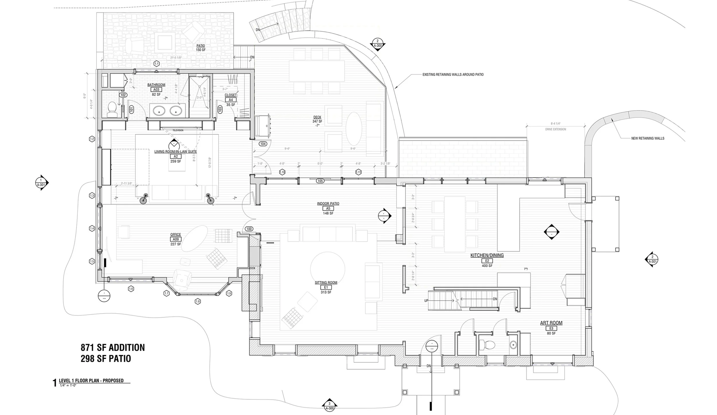
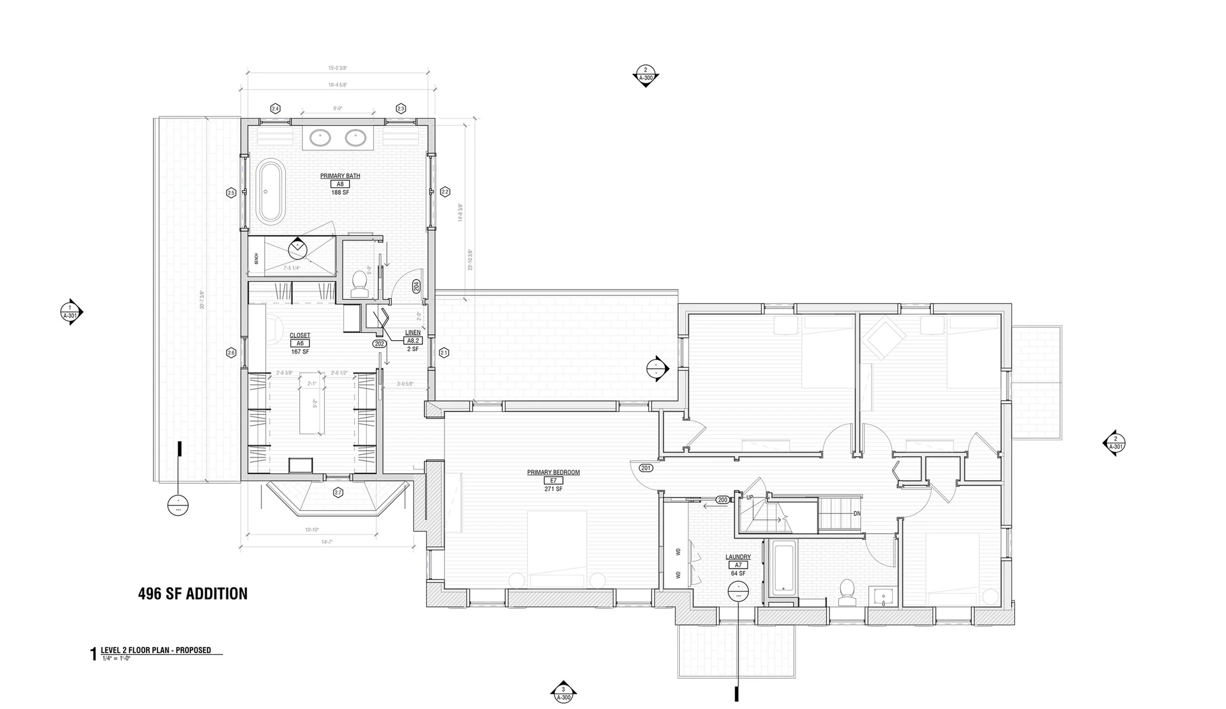
Woodcock Design was engaged to design an addition to this main line home. The family is looking for an addition to allow the extended family space to live and expand the master suite. We enjoy teaming with Foreground Design to develop an initial concept and architecture, with project detailing and delivery by the foreground team using a design build process. This takes the burden from the homeowner by allowing design decisions to be made one time, and provided as selected. We have discovered working as a team provides the best value to our clients.
This project is in design development with construction start schedule for spring 2026.
