railyard lofts
SERVICES: Architectural Design, Planning
CLIENT: 2121 Partnership
LOCATION: Philadelphia, PA
STATUS: Under Construction
YEAR: 2023-Present
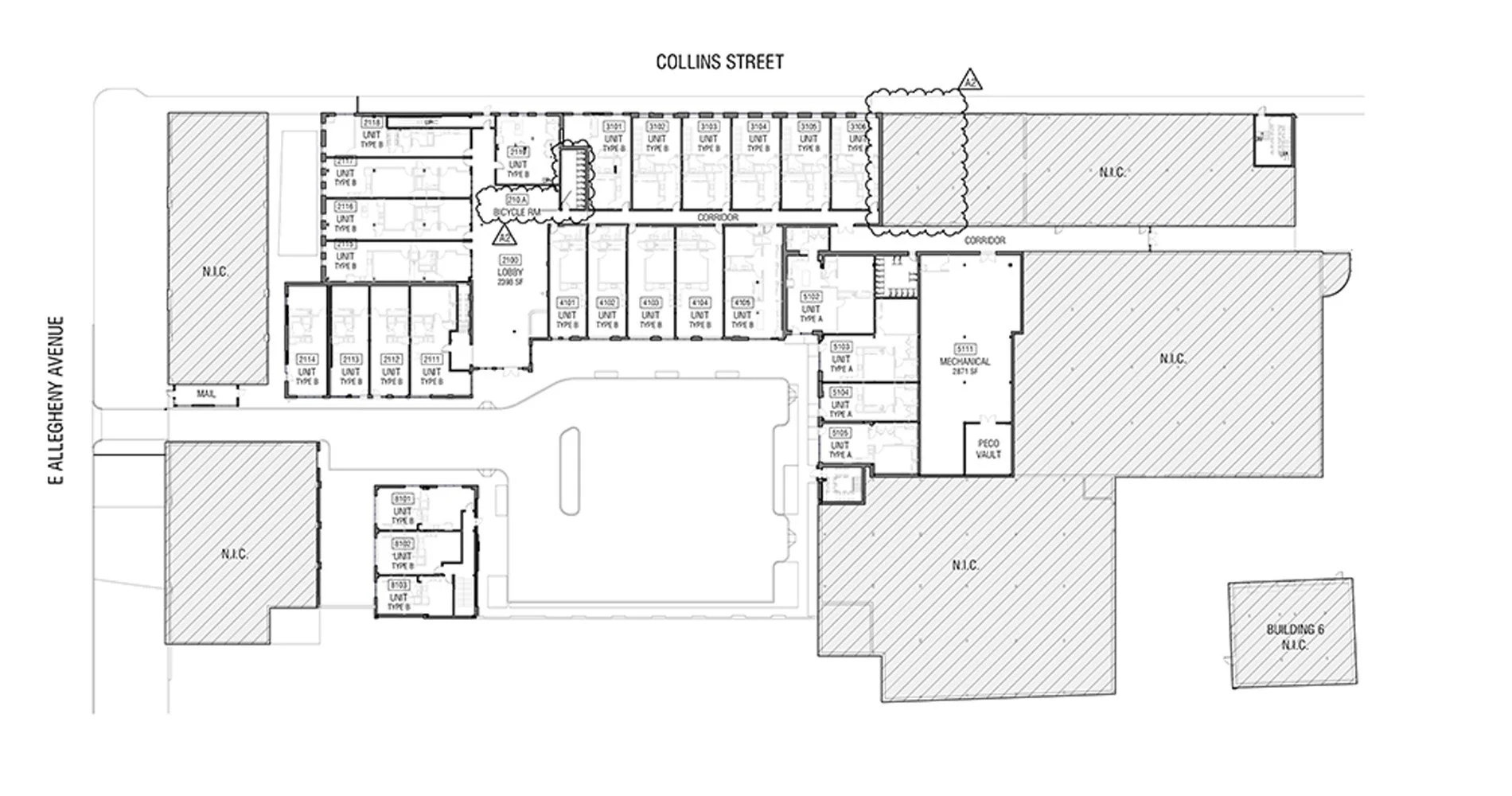
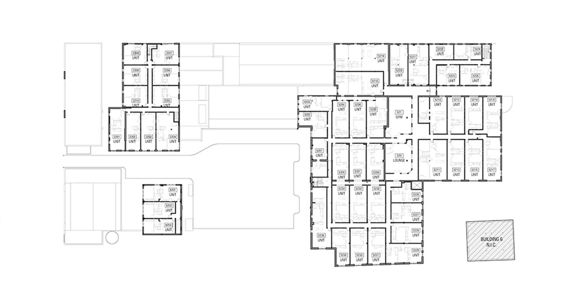
Woodcock Design, Inc. provided the zoning and building design for this project, which uses a complex of abandoned commercial and industrial buildings to create a new community, arranged around a central courtyard. The project required community review and zoning variances to convert this industrial site. The intent of the layout is to create a sense of security while reusing as much of the existing fabric as possible. The project, located in Kensington, is under construction.
